Trong bối cảnh không gian sống ngày càng thu hẹp, việc tối ưu hóa diện tích phòng tắm trở thành một ưu tiên hàng đầu. Hiểu được nhu cầu đó, TOTO Việt Nam đã cho ra mắt sản phẩm chậu treo tường chân lửng LHT328CHR, một giải pháp thông minh mang đến sự tiện nghi và thẩm mỹ cho không gian vệ sinh. Sản phẩm này không chỉ đáp ứng tiêu chí về tính năng mà còn thể hiện xu hướng thiết kế hiện đại, tối giản, phù hợp với nhiều không gian khác nhau.

I. Đánh giá tổng quan về Chậu Treo Tường Chân Lửng TOTO LHT328CHR

Sản phẩm chậu treo tường chân lửng LHT328CHR được TOTO Việt Nam giới thiệu vào tháng 8 năm 2023, đánh dấu bước tiến trong việc cung cấp các giải pháp vệ sinh cao cấp và tiện lợi.

1. Thiết kế và thẩm mỹ

Với viền chậu mỏng hơn tới 60% so với các thiết kế truyền thống, LHT328CHR mang đậm phong cách thiết kế hiện đại và tối giản. Lòng chậu được thiết kế vát đứng, tạo hiệu ứng chiều sâu và hạn chế tối đa tình trạng bắn nước hay đọng nước sau khi sử dụng. Kích thước tổng thể nhỏ gọn nhưng vẫn đảm bảo thể tích lòng chậu rộng rãi, rất phù hợp cho những không gian phòng tắm có diện tích hạn chế.

2. Công nghệ vượt trội

Điểm nhấn quan trọng của chậu LHT328CHR là khả năng ngăn chất thải bám vào bề mặt, chống bẩn và chống dính hiệu quả. Điều này đạt được nhờ sự tích hợp công nghệ men độc quyền CEFIONTECT. Đây là lớp men sứ siêu mỏng, mịn được tráng trên toàn bộ bề mặt lòng chậu, giúp giữ cho chậu luôn sạch sẽ và dễ dàng vệ sinh.

Cận cảnh lòng chậu TOTO LHT328CHR với thiết kế lòng vát đứngCận cảnh lòng chậu TOTO LHT328CHR với thiết kế lòng vát đứng

3. Khả năng kết hợp linh hoạt

Chậu LHT328C có thể phối hợp dễ dàng với nhiều loại vòi khác nhau, mang đến sự tùy biến cho người dùng. Đặc biệt, TOTO gợi ý kết hợp chậu treo tường chân lửng LHT328CHR với bàn cầu hai khối CS326 để tạo thành một bộ đôi hoàn hảo. Combo này không chỉ giúp tối ưu chi phí mà còn nâng cao trải nghiệm sử dụng không gian phòng tắm.

II. Thông tin chi tiết sản phẩm

  • Vật liệu: Sứ vệ sinh cao cấp.
  • Đường kính lỗ bắt vòi: Ø35 (mm).
  • Bộ sản phẩm bao gồm:
    • Thân chậu: L328C
    • Thân sứ: LW328CHRV
    • Bộ cố định: TX801LN
    • Chân chậu lửng: L328HF
    • Thân sứ chân lửng: LW328HFV
    • Bộ cố định chân lửng: VM5U067

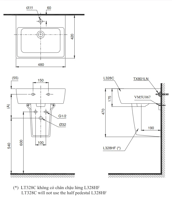
III. Bản vẽ kỹ thuật

Bản vẽ kỹ thuật chi tiết của sản phẩm giúp người dùng hình dung rõ ràng về kích thước và cấu tạo, hỗ trợ quá trình lắp đặt và thi công.

Bản vẽ kỹ thuật chi tiết của chậu treo tường chân lửng TOTO LHT328CHRBản vẽ kỹ thuật chi tiết của chậu treo tường chân lửng TOTO LHT328CHR

IV. Lưu ý khi sử dụng và lắp đặt

Để đảm bảo tuổi thọ và hiệu quả sử dụng của chậu TOTO LHT328CHR, người dùng cần lưu ý một số điểm sau:

  • Vệ sinh: Không sử dụng các chất tẩy rửa có tính axit/kiềm mạnh hoặc các chất tẩy rửa bồn cầu để vệ sinh sản phẩm. Điều này có thể gây ăn mòn bề mặt sứ của ống thải và vòi chậu. Nên sử dụng dung dịch vệ sinh chuyên dụng hoặc các chất tẩy rửa nhẹ nhàng.
  • Tránh tắc nghẽn: Các vật dụng như tóc, lông động vật, tàn thuốc lá, tăm xỉa răng có thể là nguyên nhân gây tắc nghẽn cho sản phẩm. Cần thường xuyên kiểm tra và loại bỏ các vật thể lạ khỏi lòng chậu và đường thoát nước.
  • Lắp đặt: Vui lòng tham khảo kỹ hướng dẫn lắp đặt đi kèm sản phẩm hoặc liên hệ bộ phận kỹ thuật để được hỗ trợ.

V. Mua chậu treo tường chân lửng LHT328CHR chính hãng tại TOTO Việt Nam

Để đảm bảo quyền lợi mua hàng chính hãng và nhận được các dịch vụ bảo hành tốt nhất từ TOTO Việt Nam, quý khách hàng vui lòng tham khảo mua chậu treo tường chân lửng LHT328CHR tại hệ thống phân phối chính thức trên toàn quốc theo địa chỉ: https://vn.toto.com/he-thong-phan-phoi.

Ngoài ra, quý khách có thể tham khảo các sản phẩm trưng bày tại các showroom chính hãng của TOTO (không bán hàng):

  • Tại TP. Hồ Chí Minh: Tòa nhà 1A, Số 1A Phạm Ngọc Thạch, P. Bến Nghé, Q. 1, TP. Hồ Chí Minh – (84-28) 3822 9520
  • Tại TP. Hà Nội: Tầng 2, Tháp 2, Tòa nhà Capital Place, Số 29 Liễu Giai, P. Ngọc Khánh, Q. Ba Đình, Hà Nội – (84-24) 3 771 4461

Tổng đài chăm sóc khách hàng (miễn phí cước gọi): 1800 55 8830.

Hãy liên hệ ngay với TOTO Việt Nam để sở hữu giải pháp vệ sinh tinh tế và hiện đại cho không gian phòng tắm của bạn.

Để lại một bình luận